Zurück zu weiteren Immobilien

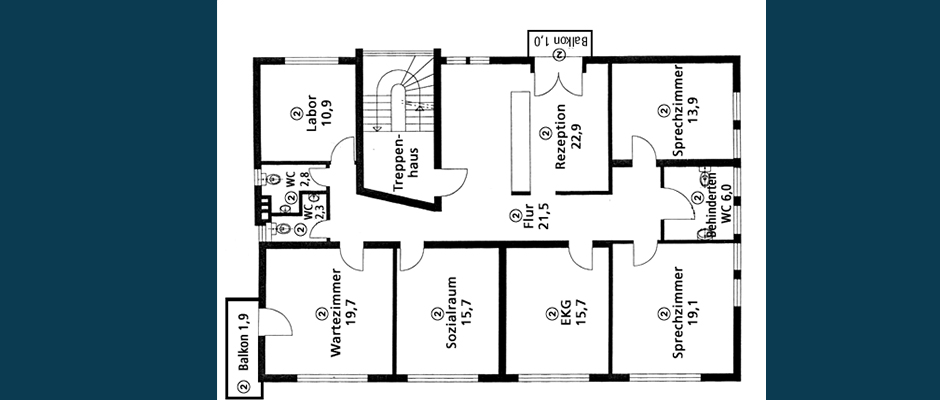
Friseursalon, Arztpraxis im EG/1.OG, Wohnungen im 2.OG/DG

Lage:  Zentrale Lage (Stadtteil von Heilbronn)
Ausstattung:  Komplett neu renoviert im Jahre 2001, neue Kunststoff-Isoglasfenster, neue Türen, Öl-Zentralheizung, neue Bäder/Toiletten, neue Laminatböden bzw. Fliesen in Bädern und Küchen, neu tapeziert, neue Außenanlage incl. Eingangsbereich, 5 Garagen mit autom. Rolltoren, 7 PKW-Außenstellstellplätzen.